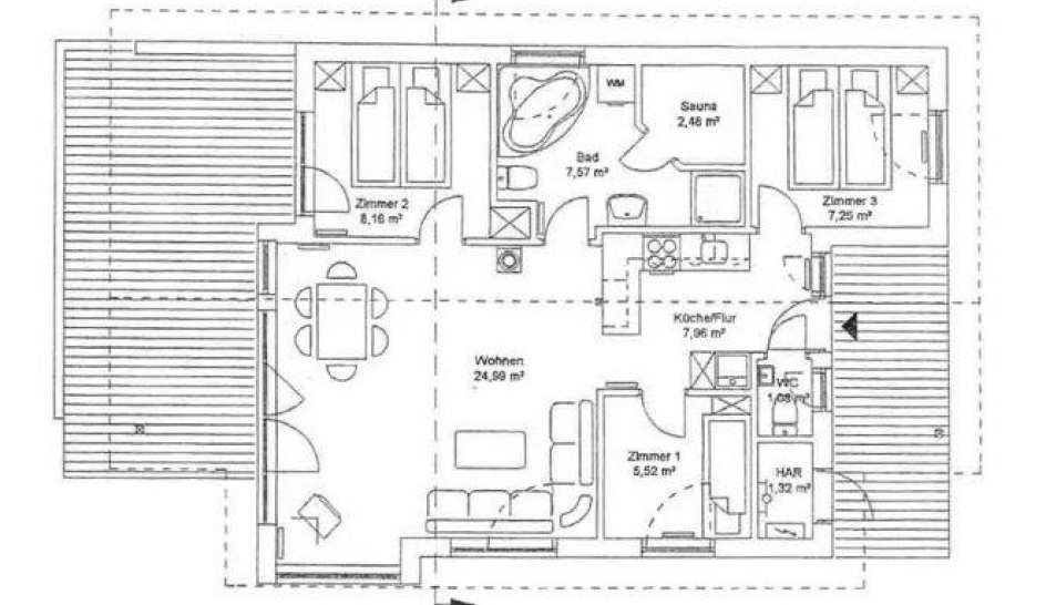
Grundriss

Ein Wohnbereich mit offener Küche und 3 Schlafzimmern lädt zum Urlaub ein. Die große Terasse ist vom Wohnbereich direkt zugänglich und in einem kleinen Schuppen kann man diverses verstauen.

 

Und so wohnen Sie bei uns:

 

Großer heller Wohn/Essraum mit Kaminofen, TV- Sat, Stereoradio mit Bluetooth, Spiele und Bücher

 

Offene Küche mit:

Cerankochfeld

Backofen

Geschirrspüler

Kühlschrank mit Gefrierfach

Kaffeemaschine

Wasser- und Eierkocher

Mikrowelle und Toaster

 

Und natürlich alles das, was man sonst so im Urlaub braucht, um die Seele baumeln zu lassen:

WLAN

Staubsauger :-)

Kinderhochstuhl und Kinderreisebett

 

Im Außenbereich und auf der Terrasse:

Zwei Autostellplätze
Holzterrassenmöbel mit Auflagen
Zwei Liegen
Ein Holzkohlegrill

Strandkorb (ab März 2017)